注文住宅|建売住宅|リフォーム|千葉県市原市|エステートアズ
Address
千葉県市原市五井1743
TEL
0436-63-3601
FAX
0436-63-3673
Mail
info@estate-az.com
物件名称
アズタウンE棟
住所
市原市飯沼
交通
JR内房線五井駅徒歩22分
地域の特徴
閑静な住宅地
販売区画
3区画
物件について
アクアラインバス停徒歩8分 角地 駐車場2~3台可 平成通り予定地内
販売価格
間取り
4LDK
延べ床面積(坪数)
87.77㎡ (26.54坪)
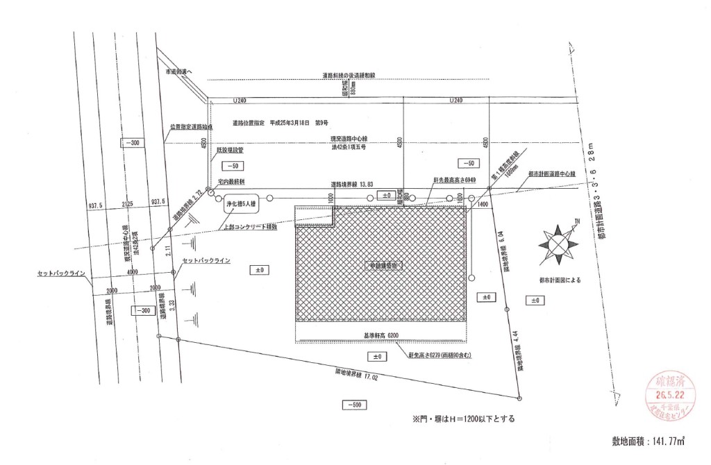
敷地面積(坪数)
141.77㎡ (42.96坪)
価格
ご成約済万円
建物の設備
オール電化住宅 フラット35s(金利Aタイプ10年)
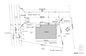
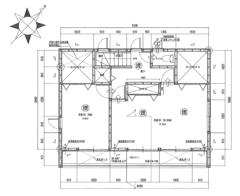
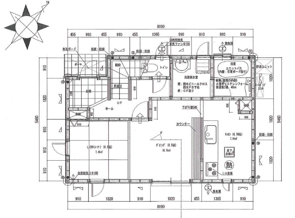
図面
敷地の図面
平面の図面(1階)
平面の図面(2階)
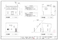
立面の図面
建売住宅一覧に戻る
次の建売住宅を見る »